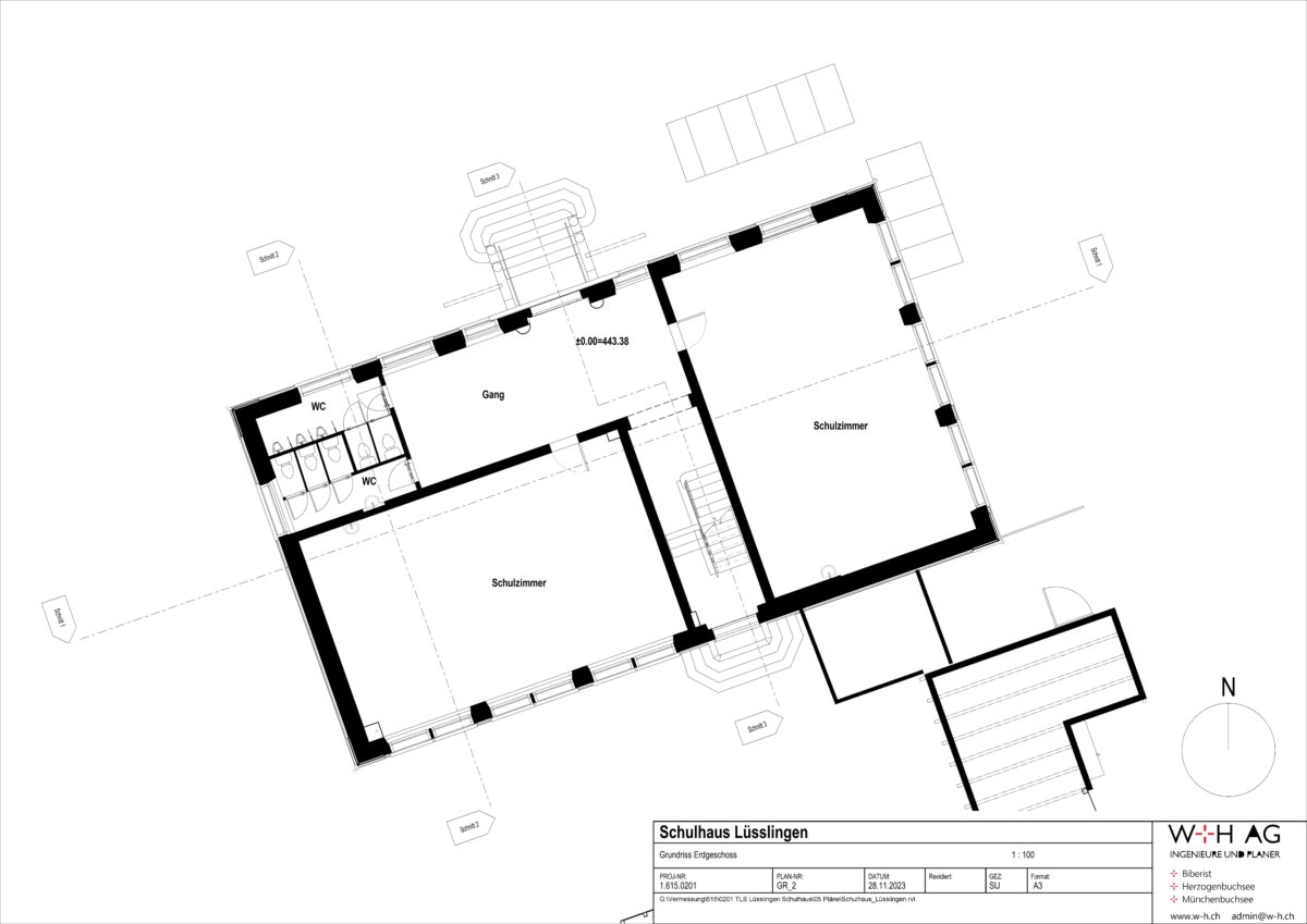
Gebäudeaufnahmen Schulhaus Lüsslingen -Nennigkofen
Projektbeschrieb
- Laserscanningaufnahmen
- 3D-Modellierung
- Planextraktion
Auftraggeber
Einwohnergemeinde Lüsslingen – Nennigkofen
Zeitraum
November 2023 - Dezember 2023Leistungen
- Gebäudeaufnahmen
(Grundriss-, Schnitt-, Fassadenpläne-,
Gelände + Bäume)
Spezielles
- Aufnahmen an unterrichtsfreiem Tag
Fachbereich
3D-Vermessung



